Objektart
Adresse
Objektdaten
Informationen
Ausstattung
Details
Diese Doppelhaushälfte ist keine Immobilie von der Stange, sondern eine echte Gelegenheit. Sie bietet eine solide bauliche Grundlage, eine klare Grundstruktur und viel Raum für individuelle Ideen - im Innenbereich ebenso wie im Außenbereich.
Beim Betreten empfängt Sie ein zentraler Flur. Eine separate Garderobe sorgt für praktischen Stauraum. Die Küche verfügt über einen integrierten Vorratsschrank und bildet eine gute Basis für eine moderne Neugestaltung.
Das offen angelegte Wohn- und Esszimmer ist das Herzstück des Erdgeschosses.
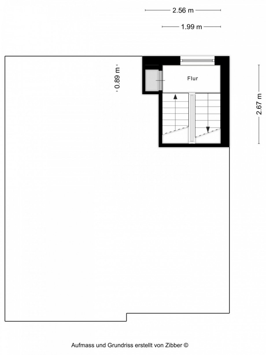
Im Obergeschoss stehen zwei Schlafzimmer zur Verfügung. Ergänzt wird diese Ebene durch ein Badezimmer sowie ein separates WC. Das Dachgeschoss ist über eine faltbare Dachbodentreppe erreichbar und bietet zusätzliche Nutz- und Abstellfläche mit weiterem Entwicklungspotenzial - ob Stauraum oder perspektivischer Ausbau.
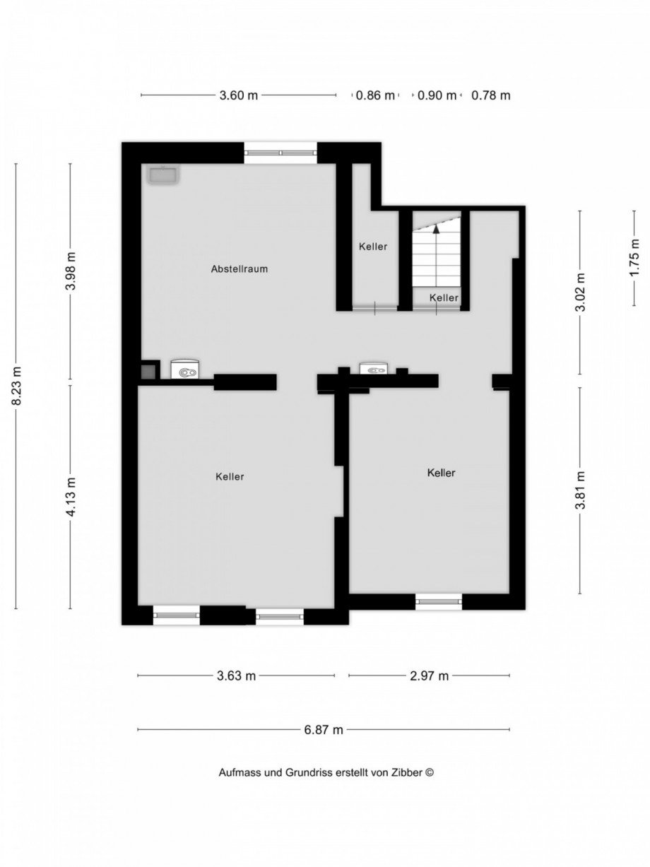
Das Haus ist vollunterkellert und verfügt über drei großzügige Kellerräume. In einem Raum befinden sich die Heizungsanlage sowie der Waschmaschinenanschluss, die weiteren Flächen lassen sich flexibel nutzen.
Über die Terrassentür gelangen Sie in einen Wintergarten, der vor vielen Jahren in Eigenleistung errichtet wurde. Dieser Bereich ist ausdrücklich als Abriss- oder Neugestaltungsfläche zu verstehen - eine ideale Chance, um hier etwas ganz Eigenes entstehen zu lassen und den Außenbereich neu zu denken.
Zur Immobilie gehört Transparenz: In der Vergangenheit gab es einen Wasserschaden. Die Ursache wurde behoben. Unabhängig davon besteht ein deutlicher Renovierungsbedarf. Genau darin liegt jedoch die Stärke dieses Angebots: Der Zustand wurde bei der Preisfindung bereits berücksichtigt und eröffnet insbesondere handwerklich versierten Käufern die Möglichkeit, Substanz, Lage und Potenzial in ein individuelles Zuhause zu verwandeln.
Eine Doppelhaushälfte für Gestalter, Handwerker und Visionäre - in sehr guter Wohnlage und mit echtem Entwicklungsspielraum.
-> Die Wohnfläche beträgt ca. 101m²
-> Das Grundstück eine Größe von ca. 258m²
-> Die Gas-Heizung wurde Ende des Jahres 2024 ausgetauscht!
-> Das Dach wurde ca. 2000 (teilweise) erneuert
-> Die Stromverteilung wurde ca. 2015 erneuert
-> Baujahr 1922
-> sehr gute Wohnlage in Kombination aus Ruhe und Stadtnähe
Diese Immobilie befindet sich in Goch in einer Wohnlage, die heute selten geworden ist: ruhig, gewachsen und von Menschen geprägt, die bewusst hier leben - Familien, Paare und ortstreue Nachbarn, die Wert auf ein gutes Miteinander legen. Kein Durchgangsverkehr, keine Hektik, sondern ein Umfeld, in dem man zur Ruhe kommen kann.
Was diese Lage so besonders macht, ist die perfekte Balance zwischen Rückzug und Nähe zum Leben. In wenigen Geh-Minuten erreichen Sie die Innenstadt von Goch - ob für den Einkauf, den Wochenmarkt, Arzttermine, Schulen oder ein spontanes Treffen im Café. Der Alltag lässt sich hier bequem und stressfrei organisieren, ohne auf Ruhe verzichten zu müssen.
Gleichzeitig beginnt die Entschleunigung praktisch vor der Haustür: Nur etwa drei bis fünf Minuten zu Fuß trennen Sie von weiten Feldern, offenen Landschaften und Spazierwegen, die zu jeder Tageszeit Erholung schenken.
Diese Doppelhaushälfte liegt in einer Wohngegend, die Beständigkeit ausstrahlt und ein echtes Zuhause bietet. Ein Ort, an dem man ankommt, bleibt - und sich jeden Tag aufs Neue darüber freut, genau hier zu leben.
Goch bietet eine Lebensqualität, die Sie spüren.
Die Stadt verfügt über ein umfassendes Infrastruktur- und Versorgungsangebot: eine große Auswahl an Supermärkten und lokalen Einkaufsmöglichkeiten für den täglichen Bedarf, Fachgeschäfte, Cafés und Gastronomie direkt vor Ort. Zudem sind alle (!) Schulformen in Goch vorhanden - von Grundschulen über weiterführende Schulen bis zu Ganztagsangeboten und einem Internat.
Energieausweis (Verbrauchsausweis)
179,70 kWh / (m²*a) Energieverbrauchskennwert
179,70 kWh / (m²*a) Energieverbrauchskennwert
179,70 kWh / (m²*a) Energieverbrauchskennwert
Weitere Informationen
| Wesentlicher Energieträger | GAS |
| Energieausweis gültig bis | 2036-01-15 |
| Energieausweis Jahrgang | ab dem 1.5.2014 |
| Energieausweis Werteklasse | F |
| Energieausweis Baujahr | 1922 |
| Energieausweis Gebäudeart | Wohngebäude |
| Heizung | Zentralheizung |
| Befeuerung | Gas |
